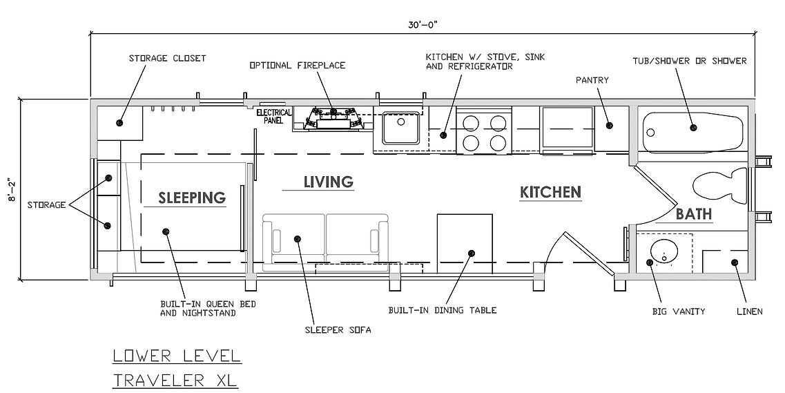
The ESCAPE brand entered the THOW world just a few months ago with their 269 square foot Traveler, and they are now selling the XL version of this stylish cabin that can be towed to any location. Just in case you need a little extra room, the XL has a first floor bedroom with a Queen bed and panoramic windows.
The XL is 6 feet longer than the regular Traveler (30 foot long; 34 foot with hitch) and weighs about 13,000 lbs. ESCAPE is selling the XL for $72,800 and they are offering to take $2,200 off the MSRP if you pay for your Traveler XL up front.
The basic package features Panel-Loc metal roofing, cedar lap siding and Cor Ten style metal siding, interior pine walls with ESCAPE’s signature details and trim, panoramic windows in both the living room and dining room, vinyl flooring and a ton of storage.
The kitchen has maple cabinetry, Energy Star appliances and a built-in kitchen table. The bathroom features a full shower and sink and TOTO toilet. The XL also has a sleeping loft with a window and a storage loft that takes advantage of the vaulted ceiling.
Options include granite or stone countertops, a washer and dryer combo, an AC heat pump split system and an upgraded on demand water heater. You can also add a composting or incinerating toilet for an extra $1,700 to $2,200.
If you are interested in seeing the ESCAPE Traveler up close, visit the Build Small Live Large Summit on November 6, 2015 in Portland. The original Traveler will be located in front of the Smith Center at Portland State University.
Learn more about the ESCAPE Traveler and the ESCAPE Traveler XL.
Photos by ESCAPE
By Christina Nellemann for the [Tiny House Blog]






I am laughing because my ex-husband liked to make fun of the fact that I was born in West Virginia and my grandmother lived in a trailer (one in which you could eat off the floor though–she kept it up nicely and with beautiful landscaping). So he always told me “the trailer’s between your ears,” hinting that living in one means you are white trash. Well, voila, the trailer just needed a make-over and we’ve all seen women who’ve been through one and look marvelous, right? Anyway, this is absolutely beautiful and if this is the trailer between my ears, then I’m doing JUST FINE!!!!
I can see W.V. from my home in Kentucky and I was graduated from Marshall University with a masters degree. I think you are doing just fine!!! Finer than fine!
My family is from WV, mostly Doctors and lawyers so I’m thinking we all did fine to.
OVER $70,000 FOR A MEDIUM SIZED TRAVEL TRAILER?
WOW!
A 28 ft. Airstream Land Yacht costs over $140,000! A 31 ft. Airstream Classic costs over $125,000. The really inexpensive THOWs are owner built. An 18 ft. THOW can cost $40-50,000 if someone else builds it (well) for you. So $72,000 is a lot but it’s not ridiculous.
I just love this! I hope someday to see one in person. Seem so nicely built and having a bedroom on ground floor is a BONUS! Expensive? I agree with Blake, and if you are fortunate enough to have the skills to build your own GREAT, won’t cost you as much!