Guest Post by Jan Brackett
I first learned about Tumbleweed Tiny Houses many years ago. They are so attractively designed and soundly built; I returned many times to the Tumbleweed web site to fuel and inform my own housebuilding fantasies. I didn’t seriously consider building my own tiny home on wheels, though–until recently.
When I bought property on the western bank of the Kennebec River in Maine 20 years ago, my plan was to replace the run-down, poorly-built home with a new one within a year or two.

Instead, life happened. I have lived in this house, and raised a son (who is now 25 and on his own) in this house. Over the years, I have worked on various possible strategies for living on my land while tearing down my house and building a new one. No plan felt “right,” though, for various reasons until, recently, when it occurred to me that I could build a tiny home on a trailer as my interim living space. Now I am spending every non-working moment living and breathing tiny-home planning.
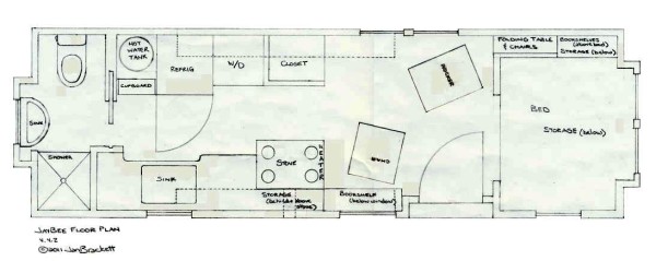
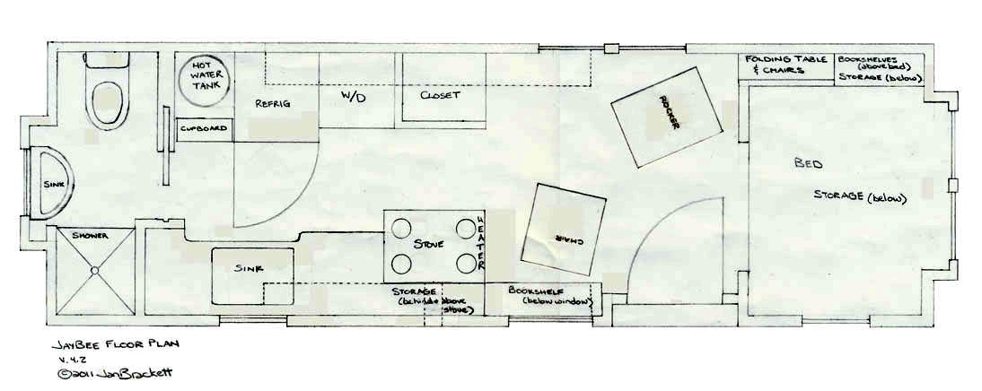
I designed my own tiny home to fit the way I live; I’m calling my design the “JayBee.”
The design process has been the most fun so far. Every decision involves trade-offs. By creating my own design, I can build a home that fits my needs and my life, rather than having to adjust to a home designed to fit someone else’s ideas and life.
I found someone who has custom built a trailer for my JayBee; the trailer is 26 feet long by just under 8.5 feet wide. It is super strong (8″ steel; three 6,000 lb. axles).

While I wait for the snow to clear out so I can start building my JayBee,

I am refining my framing drawings and researching/collecting materials. I have also started a blog to record my progress with this project: http://riveredge-jaybee.blogspot.com


Jan, you are putting a lot of thought and planning into this, and if 25 years have transpired you have surely been patient. I look forward to seeing updates on your project. Best of luck to you! 🙂
This seems to be more of a travel trailer setup than a traditional “tiny home”. I’m not criticizing, I think it’s great. My wife and I have been considering living in a motor home full time that’s roughly the same length. I’m really looking forward to seeing how you get on with this project!
Thanks for the well wishes, Irene and pb. No offense taken, pb. I even say somewhere in my blog that I’m not sure my home qualifies as “tiny.” Even though there is plenty of length to my home, that width sure feels tiny. In my town, you cannot get a permit for a mobile home unless it is at least 14 feet wide–which is one reason why my home will have a “permanent campsite” permit instead.
“Permanent campsite” is an interesting designation. Does that mean you can keep it set up indefinitely or is there an upper time limit?
Alice: Technically, there is no time limit and, apparently, there are a number of “permanent campsites” in my town. In order to get that permit, the site has to have a water source and a septic system. I am going to use the water and septic I have with the house I will be tearing down (those two systems are fine, even though the house itself is not), so I can get the permit. If/when I rebuild the house, I think I would be required to disconnect the trailer house from at least the septic (I think it would be deemed too small to handle both) so, at that point, I think I’d have to swap one permit for another. I like the “permanent” status, though, just in case I like living this small SO much that I decide not to rebuild the other house.
It looks like a beautiful spot. I also live near the Kennebec river in Maine. Have you seen this post http://tinyhouseblog.com/pre-fab/the-chapman-ridge/ It may or may not be something that you may consider. Good luck!
John: When I visit that post, none of the pictures load, so I think I’m missing vital information. I’ll keep trying.
Like the floor plan – will be watching for updates!
A washer & Dryer? And….. I keep thinking of how to put a tiny japanese tub in for theraputic soak…. and…. you solved that for me as well. I didn’t even consider putting it outside.
I like the floor plans as well. Wish you best of luck. We will be following.
I’m glad you like the floor plans, Mark and Kaitlyn. I spent a long time on them and, in fact, will be posting the newest version at some point. The recent changes aren’t huge, but reflect the smaller bathroom sink I purchased, a slightly larger and differently oriented closet, etc. Every square inch is key, as I’m sure you know.
Kaitlyn: It’s fun that you looked closely enough to notice those details, especially the outdoor tub. In my climate, it will probably be unusable four months of the year, but at least I’ll be able to have a nice outdoor soak the rest of the year! It takes some of the sting out of my decision not to have a tub inside the home.
I was just looking at your plans for an outdoor tub. Though I can’t remember the name of the book there is one out there showing how to make a cob enclosure around an outdoor tub so you can have a fire under it with a chimney to direct the smoke away from the bather. If you had a setup like that and some sort of temporary winter enclosure you bolt together easily you could extend the outdoor tub season. I’m making a winter porch for my trailer deck next year out of 2’x6′ panels that bolt together, maybe just have some of that ripstop clear tarp for covering until I can get something better (frequently known as “permanent temporary”).
I’d be very interested in pursuing something like this–after the house is built, of course. 🙂 If you remember the book, I’d love to hear about it. I had briefly thought about the possibility of lighting a fire under the tub, but I’d want to do it in a way that would not compromise the tub…
Found it! You Can Make The Best Hot Tub Ever by Becky Bee I haven’t looked at the actual book, just saw it reviewed somewhere. http://www.chelseagreen.com/bookstore/item/you_can_make_the_best_hot_tub_ever/
Wow. Thanks so much! I got a kick out of the reviews of this book on Amazon. Two people panned the book because it shows how to “build a fire under an old tub” instead of how to build something new and fancy with thermostatic controls, etc. Even though I don’t understand how anyone could read a description of the book and even think they would be getting the latter, that isn’t what I’d want anyway. I’d love to learn how to build my own hot tub by “building a fire under an old tub”!
Very clever bed arrangement, attractive exterior.
Thanks, Gene. Feels like quite a compliment, given the beauty of your designs/structures. (For anyone who hasn’t seen them, some examples are posted here: http://tinyhouseblog.com/stick-built/genes-wildwood-cottage-shop/#more-10990 ) Are you still building?
I haven`t built anything lately, when the weather gets better I am going to build a very tiny and very basic house that can be on a trailer and be very easy to remove from the trailer. I wish we had permanent campsites around here. Glad to see you are a doer not a talker. Good luck, Gene
I’d like to know what the trailer cost was? Thanks, Joe
Hi Joe: I paid $4500 for the trailer.