***Update Floor Plan with Dimensions*** Jon Wesson is a big fan of the Tiny House Blog, and if he had his way, he would have a house 120 square feet in size. But, alas, he has two children and that just would not work. Instead, he built a smallish cabin (720 square feet) on Lewis Smith Lake in Winston County, Alabama – a large reservoir much of which is surrounded by national forest land. I’ll turn it over to Jon and let him tell you more about it.
We searched plans for a while and couldn’t find anything that worked for us, so we drafted our own design. Â It’s a frame built house on a block foundation with Hardiboard exterior siding (to protect from termites, carpenter bees and other varmints) and a tin roof (Galvalume).

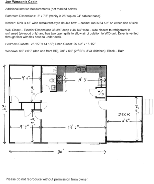
We used local subcontractors to do what we could not and the rest we did ourselves. We found some artisans nearby to build and install the cabinets and they did a great job. The open cabinets on each side of the sink give the illusion of space. The lower cabinet drawers give ample room for cookware and other storage. Â

We placed a picnic styled table in the center of the kitchen and the benches slide underneath when not in use. My wife, Jackie, found the restaurant style sink with extra deep bowls at a store in Atlanta for around $400 – actually cheaper than a drop-in sink from Lowe’s. The kitchen counters and bath are white tile. Some friends of ours installed it and it is very beautiful. The flooring is hand-scraped maple from simplefloors.com in Atlanta also, which was on a terrific sale at the time.  The total cost of the floor with installation was about $2,500.

We used recessed lighting throughout the cabin with dimmer switches in each room except the bathroom. This gives much more visual space which would ordinarily be taken up by standard light fixtures and ceiling fans. Here in the deep south, folks really love their ceiling fans and we received a lot of criticism for omitting these. However, we stand by our decision and the result really speaks for itself.
Jackie found a cool glass block window on the Internet for around $60 and we put it in the shower for some natural sunlight. It has a little screened section in the middle that opens to the outside. We also bought a ceramic niche for the shower for soaps and shampoos and this saves precious space in a 5′ x 7′ bathroom.

Given the small living area and children, we also wanted the rooms to be more soundproof than in standard construction. So we insulated the interior walls and installed solid core doors in the bedrooms, bath and laundry closet. These measures cost a little more but are well worth it. The laundry closet is next to the refrigerator and contains a stacked washer/dryer unit. The solid core door greatly reduced sound of the washer and dryer. For hot water, we have a tankless water heater that we placed beneath the house in the crawl space. The deck is 11′ x 16′ and in spring, summer and fall gives added living space.
The oven/stove is heated with propane gas and has a 250 gallon tank outside the cabin. Â For heating and air conditioning we have a two ton heat pump unit and we are very comfortable as long as we have electricity – power outages are very common here. We have an outdoor shower (hot & cold) next to the deck, however, the shower surround is another pending project we’ll hopefully finish before summer begins.

My wife and I (mostly my wife), with invaluable advice from my father-in-law, Bill – a retired homebuilder, acted as our own two-headed general contractor. We lost a little sleep but saved some money in doing so. The total cost of the cabin (excluding drive and stairway to the lake) was less than $40,000.
Thanks for letting us share. Jon and Jackie Wesson.




it should be a crime to not have a giant waterslide next to the staircase leading down to the lake.
I agree! That would be fabulous – providing the water is deep enough! This is just delightful.
Well, it would be quite a ride – about a 150 feet to the water, but yes, it would be fun! Water is approximately 30 feet deep at full pool.
That looks absolutely beautiful. Good job!
Very nice Jon. I have been on Smith lake many times, and have seen several cabins. Yours is the best yet…Good Job…
The T-111 siding doesn’t look bad at all! Love the deck shot too…and glad you have an intermediate landing- if someone fell without a middle deck they’d be all sorts of messed up. Good move….very nice place
-Deek
Relaxshacks.com
Deek –
The subcontractor who built the stair/steps to the water to the water said it would be good for anyone who ‘had about a half case’. I assume he meant beer. In any case, he was an incredible carpenter and engineer.
We are wanting to build a small house too on Smith Lake….. do you mind telling my husband and me the name of the carpenter that built your deck, stairs, and house? Also, we would love to see your house from the outside….do you mind telling us where it is located? Thank you very much!
Lovely, it’s nice to see small homes that work for a family and keep a good size kitchen. If I only had 200 square feet for a house more than half of it would be kitchen! The table with benches that can slide underneith is genius!
The picnic-style table wasn’t planned but it could not have worked out more perfectly. It was a table/benches that Jon inherited. Since the benches are completely underneath the table when not in use, it ends up functioning as an island most other times. Also, since it is right next to our laundry closet, it also is a great place for folding clothes.
This is great I wish I was there. You saved your self a ton of money on the two most expensive rooms in the house kit and bath.
We don’t spend enought time in them to justify the crazy amounts of money normaly spent showing off these two rooms.
spend the time you would be earning that money fishing with the kids. Well done 😉
This is beautiful! SO well done!
Your whole set up is my picture of heaven. I am definitely going to borrow some of your ideas. Thank you for sharing your place.
i have been looking into tiny homes and found that i really need a little more room than most of the plans i have been seeing:-( till now i love the way you have done youre cabin:-) could you please put some general dimensions in your floor plan drawing:-) i had in mind almost the same layout for my tiny mansion over here in cullman 🙂
We’ll be glad to post dimensions – we’ll check with Kent to see how to do this since he posts the pics/drawings. Also, sounds like you’re a neighbor – we’re between Arley and Addison and would be happy to have you see it in person if you like. Thanks, Jon and Jackie.
thanks for the invite i would love to come see it 🙂 my email is bamabobcat@yahoo.com maybe we can get together for a tour 🙂 there is another builder around cullman thast been featured on the tiny house blog with his hollypond house its really nice but its little smaller than what ive been looking for
Love this- might have to “borrow” the basic floorplan for my own downsize in a few years.
Thanks for sharing!
What a wonderful home. Love the kitchen, light-filled living room and the cute room for the kids with bunk beds and a lovely window. Fantastic deck too.
This is very nice! I love smaller houses until I see that they have no kitchen to speak of, and some of those combo shower/toilets are sort of disgusting to think about; maybe not so bad in real life, though. So your house is a very nice compromise between “small” and actually “livable.” I’m a big fan of heat pumps (because of the AC), so yay on that, too!
Well done and thanks for sharing it with us.
Jon and Jackie, GREAT job! Very functional kitchen, especially if trying to be more self-reliant, etc. Only thing I would add would be a screened porch and those ceiling fans. 🙂 … of course that porch roof would increase the cost some, too. Thanks for sharing with us.
That kitchen would be great in a house of any size, you could easily do canning and preserving and host big family dinners. I really like the tall windows, nice long sight lines sitting or standing and so much light. No wasted space on hallways and using closets to add separation between bedrooms are major pluses in my book.
Nice article, aside from the house itself.
This is what I look for in a tiny house article, clear explanations of what, how and why. with lots of pictures and a floor plan so that others can benefit from your ideas. No need for every one to have to reinvent the wheel!
great job, love the kitchen and everything, it is very impressive.thanks for sharing.
Jon, Great job on designing a liveable home for a family. I would love to see the dimensions of the rooms and the overall dimensions of the house. I would also love to see more homes of like this featured here. Although the tiny homes are fun to look at they are not practical for anyone who has a kid or two and still wants to embrace the small home movement. I would love to see more 500 to 800 square feet homes features. Love this site!!!!
Very nice! Your house is beautiful. I love the cabinets in the kitchen, very pretty! And I really love the enormous windows in the living room…that’s fantastic.
I am married and have two children, so I love seeing small family homes. We live in a house very similar to this in size, although it’s over 100 years old. The tiny houses are great, but totally not practical for a family of four, so I like seeing slightly larger houses.
Incredible kitchen!
Thanks everyone for all of the great feedback. We have received so many compliments on the kitchen, we wanted to share some additional info. The cabinets were custom made by Ben’s Woodcraft in Addison, AL (256.747.1495). Their workmanship is excellent and they were very reasonable. We could not have been more pleased. The kitchen sink and wall-mount faucet are from acitydiscount.com in Atlanta. Most of the cabinet hardware is standard fare knobs and pulls, but we splurged on the top drawers and put canoe pulls from coolknobsandpulls.com. — Jon and Jackie
that little porch roof could use a collartie.. shes gonna spread over time
Great cabin! We are building a small one on Smith right now too. Do you mind sharing who you used for cabinets? They look great!