Sarah wrote me about the new Monolithic Cabin and wanted me to share it with everyone. I had seen it in it’s early design stage but wanted to wait tell they had photographs to show you this unique cabin. It is not going to win a beauty contest but portability and durability will rank high for this tiny home. Here are some details about this cabin.
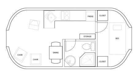
The Monolithic Cabin is a modified Monolithic Dome – like a tunnel with rounded ends. These domes all have a diameter (width) of 12 feet, but their total length and interior space depends on the model.
Model 15 has a length of 15 feet and a living area of 150 square feet. Model 18 is 18 feet long and 201 square feet. Model 24 is 24 feet long and 266 square feet. All models are a nominal 10 feet high, from bottom of crossbeams to top of roof.
David South, President of Monolithic, sees the Monolithic Cabin as “one of the most versatile, small domes we have ever designed. It’s really an all-purpose unit!
“We manufacture these cabins here, at our headquarters in Italy, Texas and load one or two of them on a truck for transport to the client’s site,” David says. “They weigh about 9 to 14 tons, are definitely shippable and require only a small amount of land.”
The Monolithic Cabin can be used as a rental unit, eco-housing or granny flat, disaster shelter, workshop, office or studio, game room, vacation dome, exercise room, temporary housing for work crews or home builders, guest house or storage. They can be designed as single living units or combined with others. The list goes on and on!
To learn more go to the Monolithic Cabin site. They are quite reasonable price wise, you can get a completely furnished unit for less than $40,000. A unique home worth looking into.
Monolithic Dome rentals are now available! Built on private country real estate giving you the small-town environment. Most units include a bathroom with shower, basin and toilet; a kitchen with stove, refrigerator, table and chairs; a furnished sleeping area; heating and air conditioning. You can find out more at the Monolithic Dome rentals site.
If you enjoyed this post, subscribe to our feed







you gotta be kiddin’ me.
“David South, President of Monolithic, sees the Monolithic Cabin as “one of the most versatile, small domes we have ever designed. It’s really an all-purpose unit!
we all have visions of grandeur, i suppose
Jay, compared to your accomplishments in life he is the Master of the Universe.
I’ve always been interested in the shotcrete and rebar domes. Earth sheltered homes are extremely energy efficient. Any idea what these particular domes are made from?
Twinkie defense?
These are shotcrete over rebar, they are insulated with spray foam. The exterior is a heavy rubberized/plastic skin, this is inflated and sprayfoam is shot into the interior to a specific depth, then shotcrete, rebar and more shotrcrete or something along those lines. I’ve haven’t watched the video lately. The skin is left on the outside to protect the foam insulation beneath it. The foam provides a thermal barrier that keeps it cool in the daytime yet warm at night due to the time it takes heat to permeate the insulation & concrete. Thats why they are so heavy, but they are great in a tornado and they are pretty quiet inside.
what you basically have there is a layout for a travel trailer. my ’73 airstream is way roomier — double bed in front and twin beds in the back AND a small kitchen AND a living room area — and it only cost $6,000.
Lori… how will your Airstream hold up in a tornado? The monolithic cabin will remain unscathed.
Wow, i never seen something that quiet captures me as much as this tiny house, and interestingly enough it has everything necessary for a house to have.
I believe I would much rather be in one of these than in a camper when a Tornado hits, or when the thermometer goes down to 20 below, or when the earth starts to shake, or when it starts raining hail, or the north winds blow at 40 miles per hour. I like the idea of these. I would like to know why they do not show a bedroom with a larger bed. These alway show only a single bed. Well I would like to take my husband along if I were to purchase one on these. Also I am wondering how to keep the pipes underneath from freezing if there is an air space between the cabin and the ground..
It reminds me of the offspring of a Quonset Hut and the Little Old Lady’s House in a Shoe http://www.shoehouse.us/
Kinda like a concrete moccasin, and I bet a way better choice than a double wide in tornado alley.
Interesting.
I can tell from experience, this is the ONLY structure I would ever live in. I lost two houses to natural disasters, and the built a monolithic dome; it is the most structurally sound and energy efficient building I have ever been in. The one I built is not tiny like the cabin, but at 3200 sf my energy bills are the same as a regular sized mobile home (I lived in one while under construction).
We have an expanded polystyrene system that can be built round as well that locks together with steel key that slides into machined chaseways. With our proprietary ceramic stuccos and plasters, the result is a harder than concrete structure, super insulated ready to take on any weather that might come its way. Since the stuccos are applied on location, there is minimal weight to the kit, just some steel and EPS, plus buckets of powdered plaster. Price per square foot would be way less than the monolithic dome.
However, those are NEARLY are tough as a monolithic dome. Not by a mile. Also what you described will not last as long.
Are there companies that I can order from to build me one of these tornado shelters? I am not interested in attending a class to learn how to do it myself.
Call the number at https://monolithic.org
I wish they still made the cabins. I used to like many of the old plans available.
I’m working with south Dakota tribes to build monolithic cabins.